Case Studies

2024 DOE Solar Decathlon Design Challenge

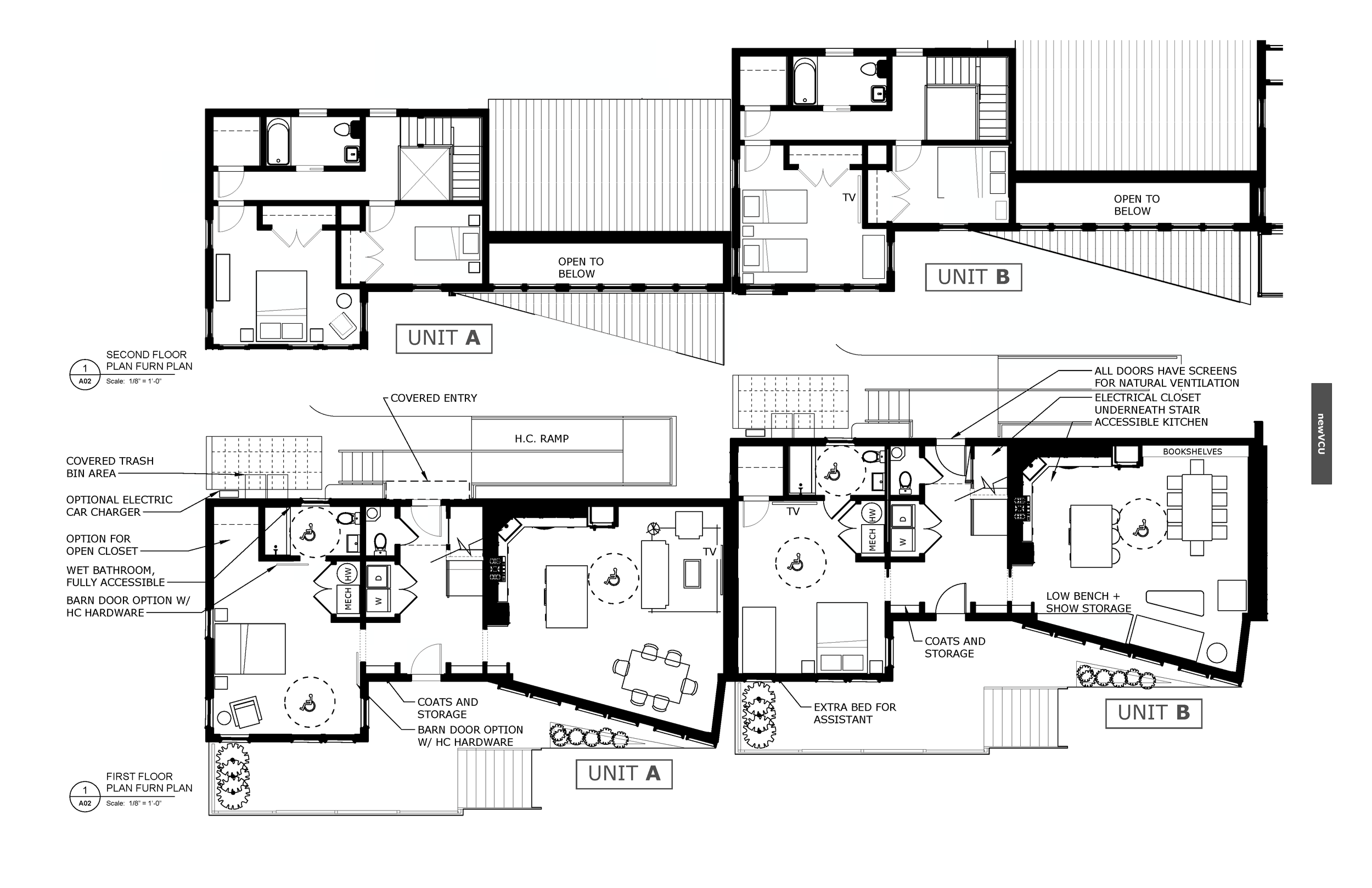
A net-zero attached housing solution for Southside Richmond, emphasizing generational living as an affordable alternative.

The Competition Challenge

In January 2024, a new interdisciplinary course was launched, offering students from across the university the opportunity to participate in an international design competition focused on Net Zero housing solutions. Since 2018, the U.S. Department of Energy’s (DOE) Solar Decathlon Design Challenge has served as a transformative platform for educators, supporting the integration of building science into academic curricula. By embedding this international competition within Laura Battaglia’s coursework, her class provided students with invaluable hands-on experience in designing Net Zero homes while engaging with industry experts.

Goals

Equitable + Sustainable: Viewing VCU as a microcosm of the greater Richmond community, the team was guided by the principle that sustainable design cannot be truly equitable if it remains unaffordable. Historically, housing that achieves a Zero Energy rating has been financially out of reach for many homeowners. Challenging this paradigm at the local level required careful attention to three intersecting conditions:

  1. The rise in multigenerational living driven by financial pressures and caregiving needs.

  2. The shortage of affordable housing in Richmond.

  3. The city’s growing efforts to address climate and health inequities.

Solution

The project—RE-imagined Rowhouse—proposes an affordable, Net Zero attached housing solution for a historically redlined and rapidly gentrifying neighborhood in Richmond’s Southside. Designed around passive energy strategies, the project optimizes solar orientation and prevailing winds. A high-performance building envelope, paired with efficient mechanical systems, achieves significant energy savings while reducing long-term maintenance and operational costs. Flexible, accessible interior spaces support multigenerational living, and the project was praised for its clearly defined target population and its environmentally responsible approach.

VCU Student Team Members: Mehak Chopra (VCU College of Engineering), Yulan Hibbert (VCU Arts), Ranna Liu (VCU Arts), Nour Mahmoud (VCU Arts), Eiman Rasheed (VCU Arts), Li Richardson (VCU Arts), Mae Ryan (VCU Arts), Isaac Saneda (VCU College of Engineering), Kyle Sirico (VCU Wilder School), Courtney Thomas (VCU Arts), Tiffani Vasco (VCU Wilder School), Ben Wong (VCU Wilder School)

2025 DOE Building Next Challenge

A net-zero home for the Central Virginia Agrarian Commons’ Petersburg Oasis Agrihood.

The Competition Challenge

In Spring 2025, the U.S. Department of Energy’s Solar Decathlon Design Competition transitioned into the DOE Buildings Next Showcase, maintaining a similar competitive platform for participating teams. To sustain a focus on equity and community engagement, the team partnered with the Petersburg Oasis Agrihood Planning Project to design an affordable, Net Zero single-family home for farmers.

Goals

The nonprofit organization Happily Natural Day operates many urban farm sites across the Richmond region, including the Petersburg Oasis. The Agrihood’s mission to advance food justice, strengthen community networks, and address historic inequities provides a unique platform for exploring how affordable Net Zero housing can simultaneously support both energy and food security. The team’s main goal was to complement their work towards food, land, and climate justice by designing homes that provide a model through which farmers save on energy costs. It is also aspirational, inspiring Petersburg youth to view healthy buildings and clean energy as a human right, regardless of background.

Solution

The team designed eight Net Zero homes for local farmers organized around a central courtyard, complemented by a community center that anchors the development. Each home’s narrow footprint, east–west orientation, and simple massing support passive design strategies. Elements such as the trellis mitigate harsh solar exposure while referencing the cultural significance of the porch in Black communities, creating an additional space for gathering and social connection. Modular components enable multiple configurations, resulting in flexible, open-plan interiors that farmers can adapt to their needs over time.

VCU Student Team Members: Chevelle Baldwin (VCU Arts), Asmita Baskar (VCU Arts), Brittney Cates (VCU Wilder School), Mehak Chopra (VCU College of Engineering), Lily Corbin (VCU Arts), Ben Wong (VCU Arts), Sophie Myers (VCU Arts), Kiera O'Harrow (VCU Arts), Stasia Torres-Lara (VCU Arts), Tiffani Vasco (VCU Wilder School), Audrey Viazard (VCU Arts)

VAHousing Innovation Planning Grant

Exploring the minutia of NetZero housing relative to cost through a grant from VAHousing, just as Federal incentives disappear.

The Challenge

Net Zero housing offers substantial benefits—from reduced energy consumption and improved indoor environmental quality to long-term resilience—but these advantages have historically remained inaccessible to many low-income households. This research examines the potential for achieving true affordability within Net Zero performance standards through the evaluation of the initial Petersburg Oasis prototype.

Goals

To prioritize affordability, the team revised the original prototype while preserving commitments to health, durability, and cultural relevance through a research study funded by VAHousing. To address these questions, the study advances three approaches:

  1. Consultation with professional cost estimation services to establish realistic financial baselines

  2. Engagement with local industry experts to assess constructability, labor implications, and regionally appropriate systems

  3. Development of matrices to evaluate interior and exterior material choices, enabling systematic comparison of cost, durability, embodied carbon, and cultural relevance

Solution

Conclusions highlight the importance of regionally available, cost-effective materials and construction methods, demonstrating how a hyper-local approach can support sustainability without compromising affordability. The matrix also provides a replicable framework for future projects navigating the ongoing tension between environmental performance and equity.

VCU Student Team Members: Asmita Baskar (VCU Arts), Mehak Chopra (VCU College of Engineering), Lily Corbin (VCU Arts)